Rénovation d'un appartement 2 pièces 32m²
Présentation de ce projet de rénovation
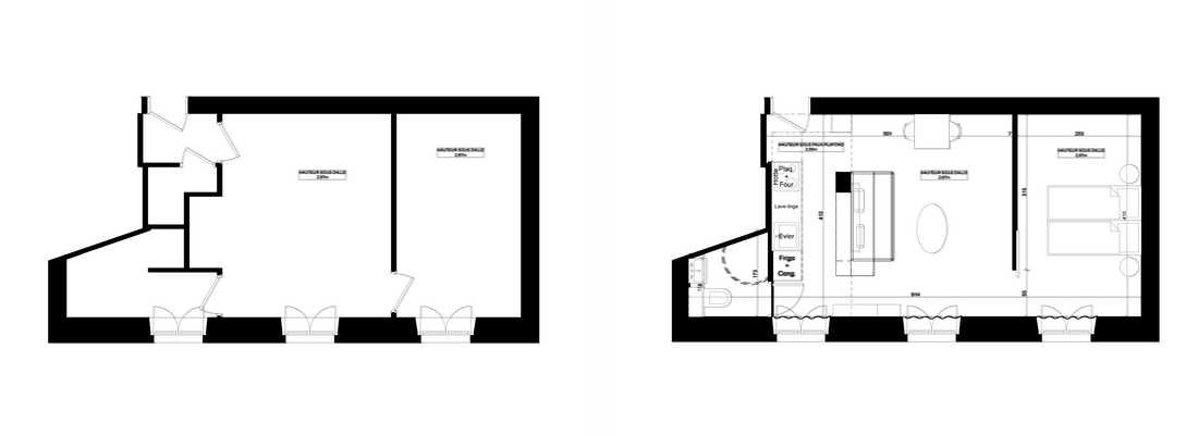
Cet appartement 2 pièces de 32m², vétuste et cloisonné, nécessitait une rénovation complète. Le but de cette rénovation était de lui redonner une bonne luminosité et un ressenti d’espace.
Le bloc sanitaire/cuisine, très mal optimisé, a donc été entièrement démoli et repensé. La cuisine a gagné en espace et la salle d’eau optimisée offre aujourd’hui une douche à l’italienne très confortable.
Le séjour initialement d’une surface de 13m2 est devenu une grande pièce à vivre de presque 20m2.
La porte d’accès à la chambre a été transformé en une grande ouverture plus large et toute hauteur et une seconde baie a été percée pour ouvrir l’espace salon sur l‘espace nuit.
Mobilier : Tapis IKEA, Fauteuil Le Corbusier, Table Eileen Grey, Chaise Eames, Chaise Jacobsen, Meuble Componibili violet Kartell
Revêtement : Sculpture plâtre Didier Sandrin, Carrelage sol et mur Cinca
