Appartement 3 pièces 70m²
Présentation de cette rénovation : Optimiser l'espace de l'appartement
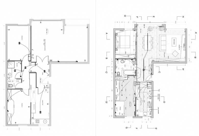
L’objectif de la rénovation de cet appartement de 70 m² consistait avant tout à optimiser l’espace au maximum, en agrandissant notamment la chambre d’enfant. L’architecte d’intérieur avait carte-blanche pour proposer un résultat atypique, contemporain et chaleureux.
L’entrée donne directement sur la pièce à vivre de l’appartement, qui comprend entrée, salle à manger, salon et petit coin bureau. Véritable colonne vertébrale de l’appartement, le mur de gauche, habillé de tasseaux de bois revêtu, mène aux chambres, ainsi qu’à leur salle de bains.
L’une des singularités de l’entrée, ouverte sur la salle à manger, réside dans la création d’un long luminaire sur mesure. Fixé au plafond, ce modèle – en medium laqué blanc pour rappeler le meuble principal de la pièce – amène un éclairage indirect, dirigé vers le haut. Il permet aussi de résoudre le problème de l’emplacement de la sortie de fil.
L’autre élément structurant de la pièce à vivre est un grand meuble blanc et jaune d’œuf, dessiné sur mesure. Il longe l’entrée, le salon et revient sur un troisième mur à la façon d’un meuble télé. L’ensemble, dynamisé par la présence d’une multitude de niches de rangement jaunes, ne sature par l’atmosphère parce qu’il est comme suspendu, décollé du sol et du plafond.
Tout a été refait dans la cuisine. Les portes ont été supprimées pour gagner en sensation d’espace. Les meubles sont en medium laqué blanc mat et l’élégant plan de travail en marbre de Carrare. Pour créer un effet de contraste, la peinture murale, d’un gris noir satiné, rappelle la tonalité du parquet en chêne, ici teinté en noir.
Fonctionnelle, la nouvelle salle de bains de l’appartement, agrandie en prenant sur l’ancien couloir et entièrement rénovée, abrite une baignoire (bien pratique quand on a un jeune enfant de cinq ans), ainsi qu’un beau meuble vasque et un emplacement destiné au lave-linge.
> Voir l'étude de cas qui présente cette rénovation d'un appartement des années 70
