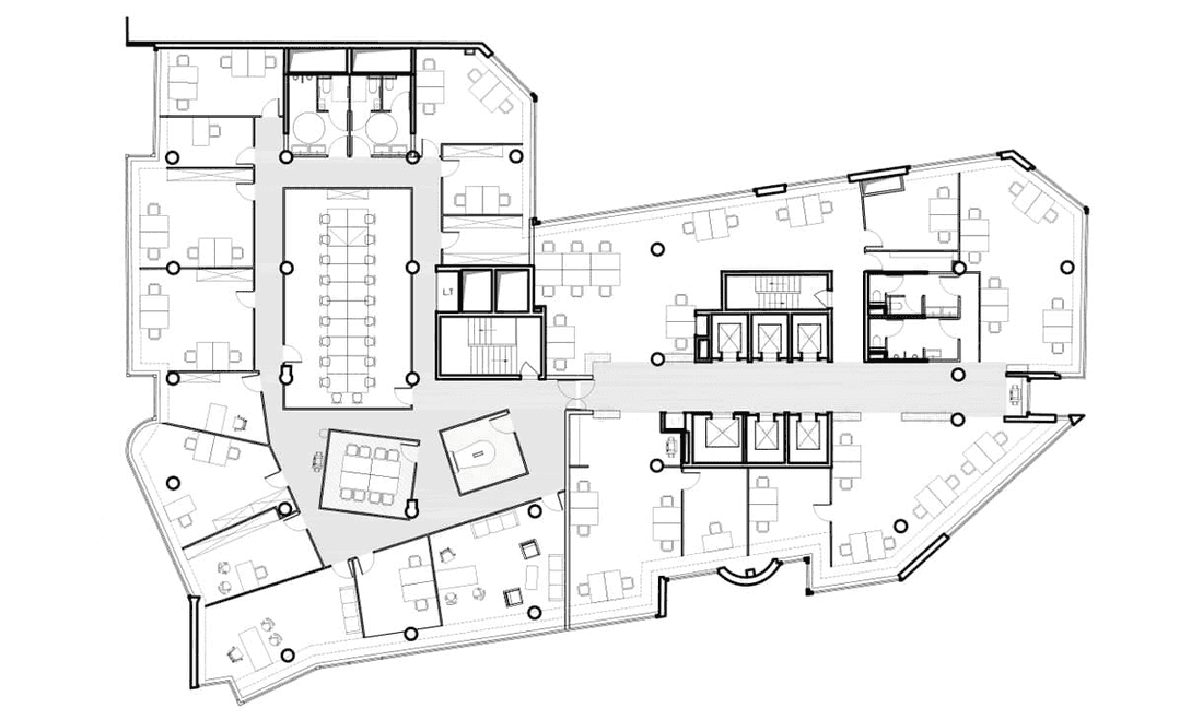
Arrangement of 2 storeys in an office building
- Dimensions: 2000 m² (on two storeys)
- Objectives: Mixing up closed offices with open spaces and living areas
Aménagement des bureaux
Les bureaux fermés ont tous été disposés en périphérie des locaux, afin de bénéficier de l’éclairage naturel des fenêtres bandeau en façade.
Cette organisation permet de libérer l’espace central des plateaux pour la mise en place des open spaces et des « bulles ». Ces dernières, organisées comme des volumes désaxés viennent ponctuer et animer les lieux, contrastant avec la rigueur des bureaux vitrés.
La disposition de ces « bulles » crée des circulations dynamiques, recréant une forme d’urbanité interne. Les filtres colorés sur ces différentes boites vitrées génèrent des jeux de reflets et de perspectives sur chaque plateau.
Un espace commun conçu autour de différents usages
Dans le cadre de ce projet d'architecture tertiaire, l’espace commun de ces locaux est divisé en 3 lieux :
- Une terrasse aménagée et végétalisée, avec mobilier d’extérieur.
- Un espace détente, pensé comme un salon anglais, avec de larges Chesterfield en cuir dialoguant avec un mobilier sur mesure (tables basses, bibliothèques) privilégiant la qualité brute des matériaux métal et bois.
- Un espace déjeuner, composé autour de longues tables hautes, étagères et caissons, dessinés à cette occasion, reprenant l’esthétique bois-métal.
Photographe : David FOESSEL
