Modernisation d’un appartement en duplex 50m²
- Surface : 50m2
- Style : Dans l’air du temps
- Objectifs : Moderniser, sécuriser et créer des espaces différenciés
L’objectif de ce projet d’architecture d’intérieur était d’améliorer la circulation dans l’appartement, sécuriser l’escalier et créer des espaces différenciés. L‘architecte a pris soin de conserver la luminosité des 9 fenêtres de l’appartement et de moderniser les espaces, tout en répondant aux objectifs souhaités par la cliente.
Les souhaits de la propriétaire
Cet appartement situé dans une immeuble ancien n’avait pas été rénové depuis 30 ans. Ce duplex est le résultat de la réunion de 2 surfaces au 4eme et 5eme étage. La propriétaire - qui avait acheté l’appartement il y a une vingtaine d’année sans y faire de travaux - décide au début de sa retraite de changer son environnement en modernisant son appartement.
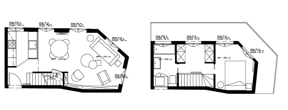
Cet appartement duplex avec un escalier en colimaçon avait 2 espaces ouverts sans réelle cohérence. Ce projet d'architecture d'intérieur répondait à plusieurs objectifs :
- Moderniser son environnement avec des choix de matériaux dans l’air du temps.
- Sécuriser l’appartement en créant un escalier moins dangereux et en résolvant les problèmes de structure.
- Créer des espaces différenciés afin de créer une chambre indépendante.
- Créer des rangements sur mesure et intégrés au reste de l’aménagement.
La proposition de l’architecte
Afin de répondre aux souhaits de la cliente, plusieurs propositions d’aménagements ont été proposées par l’architecte d'intérieur.
La proposition choisie par la cliente a été présentée à la copropriété grâce a un dossier rédigé par un ingénieur structure afin de valider la modification de la trémie et de l’escalier, et valider le renforcement de la structure fragilisée par des anciennes infiltrations.
L’espace de l’entrée créé grâce à l’escalier a été souligné par une couleur sombre qui invite vers les espaces de vie plus clairs.
La cuisine séparée du salon/salle-à-manger par une verrière industrielle a permis de garder la luminosité des 5 fenêtres du niveau tout en évitant qu’elle soit totalement ouverte. Au sol les carreaux de ciments s’intègrent parfaitement dans le parquet afin que la limite des espaces ne soit pas nette.
Dans le salon / salle-à-manger une bibliothèque « retro » éclairé intègre à la fois l’espace TV mais aussi un cabinet de curiosité. Les objets sont ainsi mis en valeur tout en étant intégré dans un espace moderne et chaleureux.
L’escalier en colimaçon a été transformé en escalier quart tournant permettant de créer au 1er niveau un palier intégrant un dressing, une chambre et une salle-de-bain séparées par deux portes à galandage.
La tête de lit de la chambre nouvellement créée, a été travaillée par des éclairages et par la superposition du chêne et d’un papier peint géométrique.
Enfin la salle-de-bain a été modernisée grâce à des carreaux effets marbre, un sol effet béton. La robinetterie encastrée, l’utilisation de mobiliers suspendus, la création d’un placard buanderie et l’utilisation d’un ballon d’eau chaude extra plat caché dans un placard ont rendu cette salle-de-bain pure et dans l’air du temps.
