Rendre un appartement ancien plus lumineux
- Dimension : 42 m²
- Nombre de pièces : 2 pièces (dont 1 chambre)
- Style : Contemporain
D'une faible surface, cet appartement au style original rustique a été complètement repensé pour Laura dans le but de le rendre plus lumineux. En effet, l’appartement souffrait d’un manque de luminosité : des poutres de bois et un sol de tomettes foncées rendaient le salon très sombre, malgré l’incroyable potentiel des larges fenêtres donnant sur la rue pour profiter d’une lumière naturelle. Plusieurs cloisons rendaient l’aménagement peu pratique. Pour rendre cet intérieur plus lumineux, optimiser et faciliter la circulation, architecte d’intérieur et décorateur ont travaillé sur une réorganisation et un nouveau look sur-mesure.
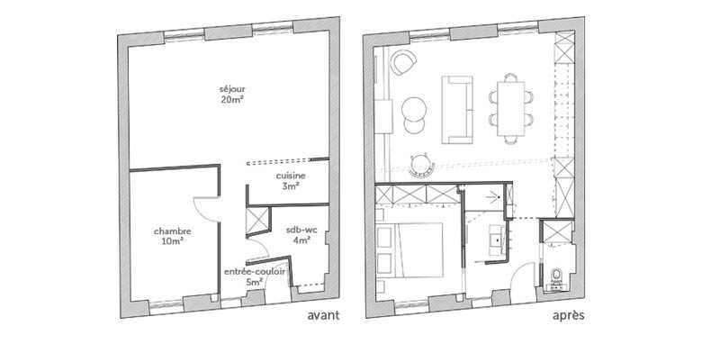
Réorganiser les volumes pour améliorer l’éclairage naturel
Véritable pièce à vivre, le salon avait besoin d’être complètement ouvert pour satisfaire les envies d’espace de la propriétaire, obtenir une circulation la plus fluide possible et éclaircir l'ensemble. Plusieurs cloisons de l’appartement ont été déplacées ou supprimées dans ce but :
- Cuisine ouverte sur l’ensemble et non plus dans un bloc fermé, pour optimiser la lumière naturelle
- Couloir droit directement relié au salon,
- Salle de bains déplacée près de la chambre grâce à l’espace libéré par l’optimisation du couloir.
Cette réorganisation des volumes a permis de libérer plusieurs mètres carrés et de gagner naturellement en luminosité.
Tout en blanc : valoriser la lumière naturelle
Le blanc est le véritable parti-pris de la nouvelle décoration. Il reflète intensément la lumière du jour, qui inonde désormais l'espace à vivre.
La cuisine sur-mesure se fait toute épurée : absence de poignées de placards (système « pousse-lâche »), laque blanche satinée dans l’esprit tendance du moment. Pour casser ce look minimaliste et retrouver une touche de classicisme, le plan de travail a été habillé de marbre de carrare.
On retrouve ce parti-pris immaculé dans les magnifiques poutres anciennes du séjour, qui ont été simplement repeintes en blanc. Le carrelage sombre a été recouvert d’un parquet de chêne blanchi. Une bibliothèque « plein-vide » blanc satin conçue spécialement pour cet appartement habille un mur entier du salon, en réponse harmonieuse avec la cuisine.
L’ambiance lumineuse est étudiée dans la même logique et fait la part-belle aux luminaires LED, incrustées dans une poutre et dans les meubles de cuisine par exemple. Le blanc s’installe jusque dans cette étonnante horloge minimaliste au dessus du foyer, ainsi que dans les autres pièces de l’appartement.
Dynamiser avec des touches citronnées
Pour casser l’impression froide de la blancheur, on a opté pour des touches agrume ça-et-là : un trait de peinture jaune vif, un vase orange, un fauteuil pamplemousse... La chambre donnant sur cour est réchauffée par un lit de bois clair scandinave. L’ancienne cheminée a été remplacée par une version bioéthanol qui réchauffe l’ambiance et rappelle le patrimoine classique du lieu.
Témoignage du propriétaire de l’appartement :
« J’ai beaucoup aimé les différentes versions d'aménagement que vous avez proposées, dont certaines auxquelles je n'aurais vraiment pas pensé. J'ai surtout apprécié la gestion des travaux et des imprévus par l’architecte d’intérieur. Quand on n'a pas le temps, c'est précieux de pouvoir avoir quelqu'un sur place. De bonnes séances shopping aussi pour les meubles, dans des boutiques où je ne serais pas forcément allée sans vous. Le service "après-vente" est au rendez-vous, ce qui est important vu le type d'appartement et le budget engagé ». Laura
Pour en savoir plus sur la rénovation de cet appartement :
> Reportage vidéo de Marie Claire Maison
> Extrait du magazine Maison & Demeure
> Extrait du magazine Maison et Travaux
