Transformation d’un studio en appartement 2-3 pièces
- Dimension : 25 m²
- Nombre de pièces : 2/3 suite à la rénovation
- Style : Contemporain avec respect du caractère historique des lieux
- Objectifs : Moderniser, optimiser l’espace
Niché au coeur du Marais, ce studio parisien d’une surface de 25m2 au sol a été transformé en appartement de villégiature pour un couple souhaitant séjourner régulièrement et confortablement en famille à Paris. Entièrement repensé, cet appartement atypique dispose désormais d'un séjour avec cuisine ouverte, d'une véritable chambre et d'une mezzanine.
Les souhaits des propriétaires : créer un appartement 2/3 dans un studio parisien
Les propriétaires, habitant à Nancy, souhaitaient pouvoir séjourner en couple ou en famille avec un confort optimal dans un appartement de villégiature de 2/3 pièces.
L’idée d’aménagement principale de la rénovation a donc été de conserver la mezzanine existante afin de l’utiliser comme dortoir pour les enfants et petits-enfants, et de créer une chambre séparée, avec un accès à la salle d’eau depuis le séjour.
Le parti pris de la rénovation : conserver l’identité du lieu
Esthétiquement, l’objectif n’était de ne pas modifier l’enveloppe existante de l’appartement - les poutres et murs en colombage étant les dignes représentants de l’identité du lieu et de ce quartier historique de Paris. Mais il était évident que l’intervention nouvelle serait contemporaine, le but étant de magnifier le volume existant ainsi que d’apporter la touche de modernité nécessaire.
L’enjeu de la rénovation : optimiser tous les espaces utiles de l’appartement
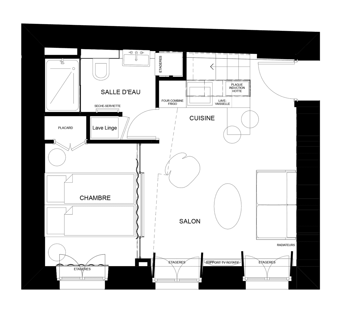
L’enjeu de ce projet d’architecture d’intérieur était de construire et d’optimiser tous les espaces utiles (sanitaires, cuisine, rangements, escalier) en les plaçant en périphérie de l’appartement. Cela permet d’obtenir un espace salon – salle de séjour le plus grand possible malgré une surface au sol limitée. Tous ces espaces sont donc savamment assemblés les uns dans les autres.
L’escalier se fait prolongement du sol en chêne massif. Les marches sont utilisées par des tiroirs de rangements. A mi-hauteur, l’escalier se transforme plan de travail et en tablette dinatoire.
La cuisine et le garde-corps de la mezzanine produisent un ensemble de volume traité dans une même couleur. La structure en métal noir en forme de croisillon habille l'extrémité du plan de travail de la cuisine. Cet élément visuellement très présent assure une fonction de support des meubles hauts mais fait également écho à la structure de la verrière, en multipliant les jeux de contraste noir/blanc/bleu clair.
La salle d’eau est entièrement revêtue d’un carrelage imitation terrazzo, qui joue là aussi sur l’opposition entre le noir et le blanc. Une porte de placard dissimule l’espace lingerie (lave-linge et divers rangements). La sous-face de l’escalier est occupée par des étagères.
La chambre est séparée du séjour par une verrière en métal noir, on y accède via deux portes vitrées coulissantes. Une double porte de placard, de la même couleur que le mur révèle une penderie. L’espace est définitivement optimisé.
Pour ne pas dénaturer l'intérieur de cet appartement de caractère et l’esprit historique du quartier, l'architecte a choisi de mettre en valeur les poutres anciennes dont le côté rustique tranche avec le reste de l’appartement.
En ce qui concerne les fenêtres, l’architecte a joué sur la verticalité en habillant les fenêtres de noir et en installant des volets en bois intérieurs qui accentuent encore la hauteur sous plafond (3,25 mètres). Pour éviter les espaces perdus, des rangements ont été aménagés sous les fenêtres, ainsi qu'un placard fermé sous la télévision permettant de ranger des câbles et la box internet.
